推薦產品
河南華東起重機械設備公司
服務熱線:400 086 9590
公司:河南華東起重機械設備有限公司
聯系人:賈經理
聯系電話:13903802779
地址:河南新鄉市封丘縣起重機工業園區
當前位置: 起重機 > 起重產品 > 門式起重機
MHZ型單梁抓斗門式起重機|MHZ型抓斗單梁門式起重機
MHZ型單梁抓斗門式起重機|MHZ型抓斗單梁門式起重機廠家直銷: MHZ型單梁抓斗門式起重機多少錢一臺?聯系MHZ型單梁抓斗門式起重機生產廠家報價!專業MHZ型單梁抓斗門式起重機廠家直銷供應,請根據MHZ型單梁抓斗門式起重機圖片、MHZ型單梁抓斗門式起重機型號、MHZ型單梁抓斗門式起重機規格參數,購買MHZ型單梁抓斗門式起重機價格!<BR/>MHZ型單梁抓斗門式起重機為半定制機械,需根據您的現場條件和需求確定軌道尺寸和其他參數。
MHZ型單梁抓斗門式起重機也叫MHZ型電動葫蘆抓斗門式起重機,MHZ型電動葫蘆單梁抓斗門式起重機,MHZ型門式起重機,MHZ型電動葫蘆門式起重機、MHZ型抓斗門式起重機。
單梁抓斗門式起重機產品介紹:
MH型單梁抓斗門式起重機是根據JB/T5663-2008 《電動葫蘆門式起重機》生產制作,與兩臺電動葫蘆(特制鋼架將兩臺電動葫蘆固定一起使用)及抓斗配套使用,是一般用途有軌運行的中小型起重機。
單梁抓斗門式起重機規格型號:
1a、抓斗門式起重機型號:MHZ型;
2s、起重量(常用規格):1噸、2噸、3噸、5噸、10噸、16噸、20噸、32噸;可非標定制。
3d、跨度(常用規格):9米、11米、13米、17米、19.5米、22米、25.5米、30米;可非標定做。
4f、起升高度(常用規格):6米、9米、12米、18米、24米、30米;可非標訂做。
單梁抓斗門式起重機技術參數:
1q、工作級別:A3/M3;
2w、起升速度:5噸及以下快速8m/min 、10噸快速7M/MIN 、16噸快速3.5M/MIN;
3e、運行速度:小車運行:20m/min 快速可做30M/MIN、大車運行:20m/min快速可做30M/MIN;
4r、電源:三相交流 380V 50HZ 可訂制其他電壓(如出口國外,需要參考他國電源電壓);
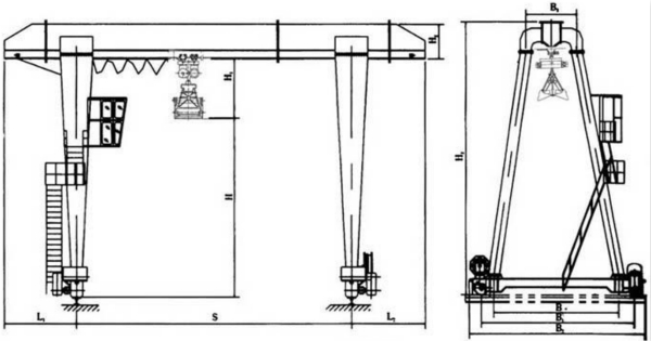
單梁抓斗門式起重機尺寸圖紙:
單梁抓斗門式起重機操作方式:
MHZ型單梁抓斗門式起重機操縱方式:有線手柄、無線遙控、駕駛室;三種操作方式可混合搭配使用,操縱室駕駛艙可同時配套無線遙控器。
單梁抓斗門式起重機工作環境:
MHZ型單梁抓斗門式起重機工作環境溫度為-20℃~40℃,禁止在易燃、易爆、化學腐蝕性介質環境中使用,特殊環境使用需要選購專用門式起重機及專業抓斗。
單梁抓斗門式起重機適用范圍:
MHZ型單梁抓斗門式起重機適用于酒廠、礦場礦山、港口碼頭、車站貨場、煤炭、垃圾站等場地,配套不同類型抓斗抓取散貨、圓木、礦物、煤炭、砂石料、土石方等不同物料。

加微信好友

微信小程序

微信公眾號
400-086-9590
139-0380-2779
- 售后服務
-























